info@grupovientos.com.ar
|
(+54 11) 4871-8851
Menu
Inicio
Nosotros
Quiénes Somos
Nuestros Valores
Desarrollos Operativos
EESS
Colegios
Desarrollos Inmobiliarios
Viviendas
Oficinas
Locales Comerciales
Parques Logísticos
Clientes
Contacto
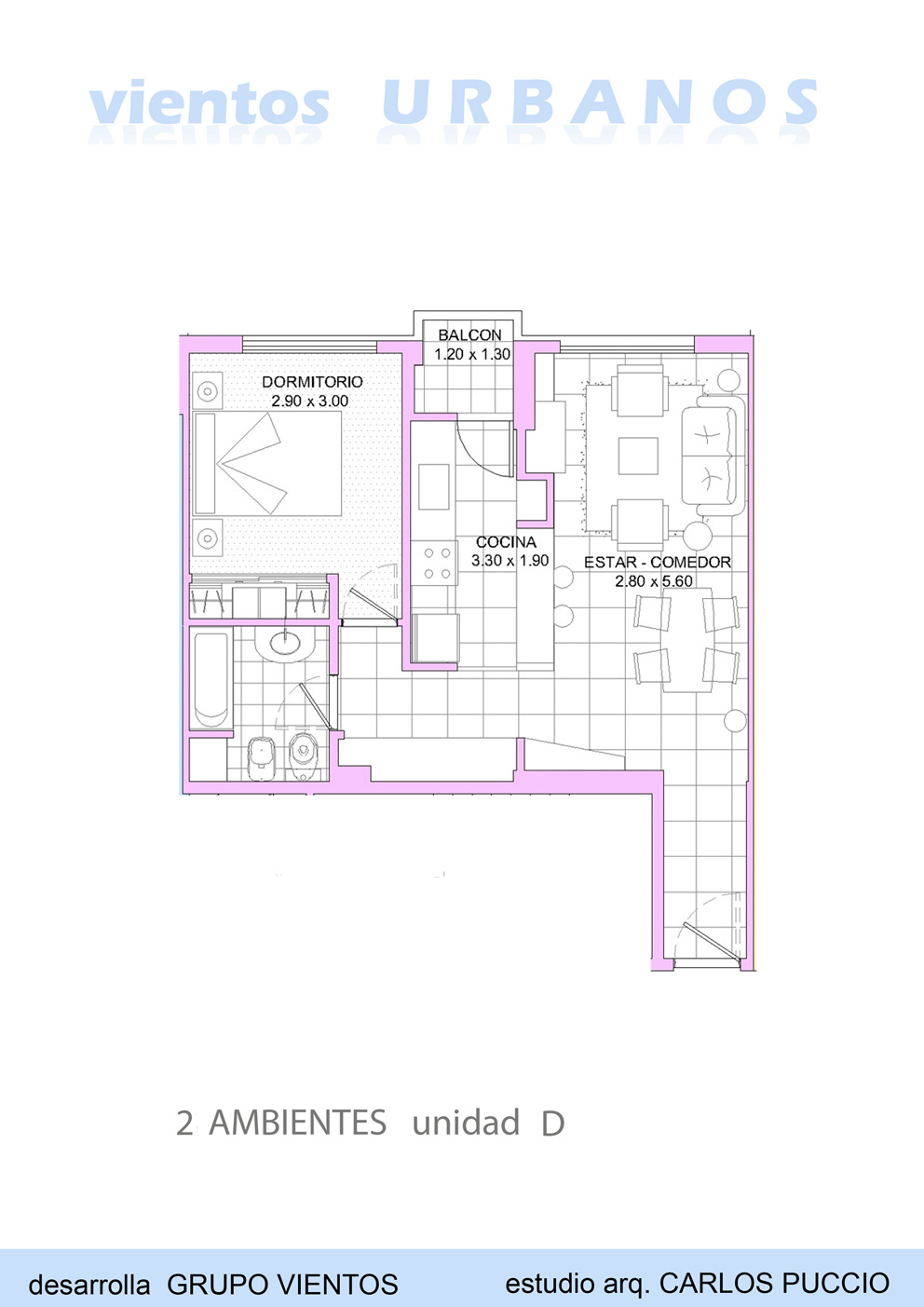
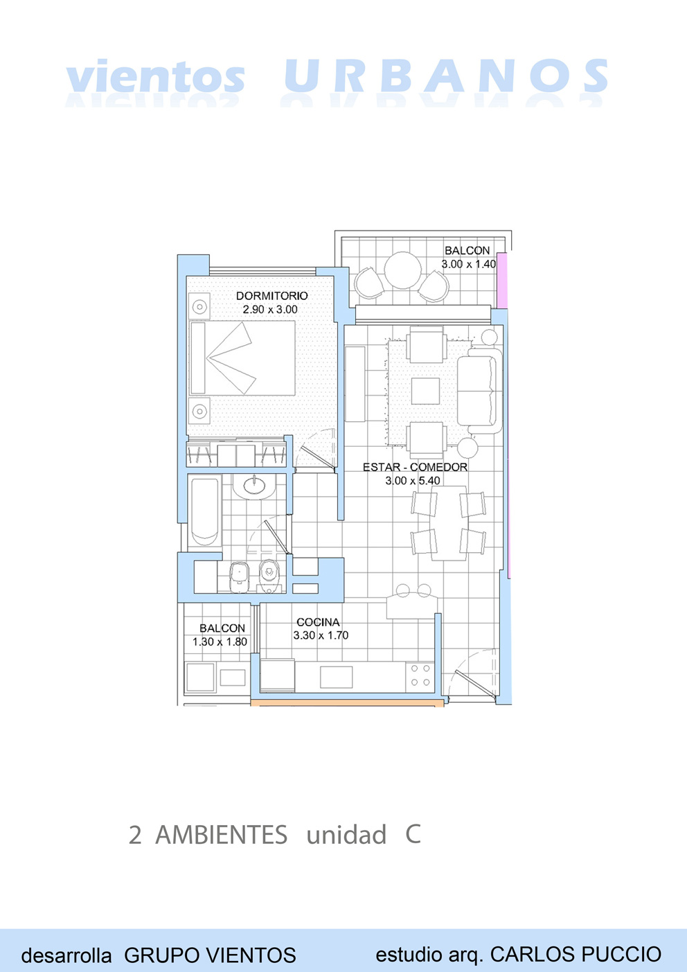
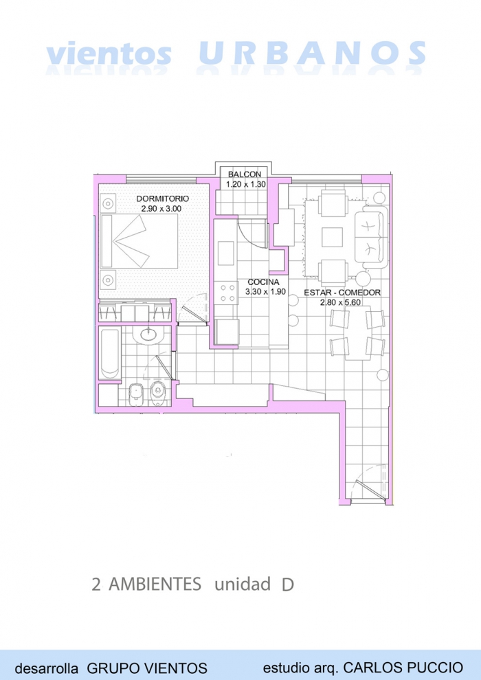
Desarrollos Inmobiliarios - Viviendas
Torre Urbanos
Caseros 2370, San Martín
Características Generales
5 departamentos por piso de 2 y 3 ambientes
2 dúplex en el último piso
Gran hall de recepción
Cocheras
Bauleras
Amplio SUM (salón de usos múltiples)
Carpinterías de aluminio
Calefacción por piso radiante
Calderas duales por departamento
Ubicación
Torre Urbanos
Caseros 2370, San Martín
Lat.: -34.5761437.
Long: -58.5430714.
Planos
©. Todos los derechos reservados.